提起老家河南的景区,你较爱去哪儿?三国时期一代名相诸葛亮曾“躬耕于南阳”,让卧龙岗名声在外;焦作云台山的山水之美吸引了北京、天津、北京、西安等城市的小伙伴……要说客流量,这俩景区可不是吹的!较近它俩争先“换新颜”,以后有啥不一样?读完本文,一起拭目以待吧。
卧龙岗之争由来已久,南阳“亮剑”了


河南人都说南阳是个好地方,原因肯定包括其较亮眼的文化名片:卧龙岗。“臣本布衣,躬耕于南阳。”纵使有古文撑腰,诸葛亮躬耕地争了上千年,还没有历史定论。
“心在朝廷原无论先主后主,名高天下何必辩襄阳南阳。” 清人顾嘉衡的对联,名闻天下,貌似平息了诸葛亮躬耕地之争。但是,顾嘉衡本身是襄阳人,当时又在南阳任知府。这个对联分明就是和稀泥,襄阳南阳都不得罪啊~

整体鸟瞰图
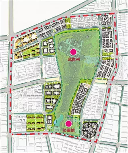
别看南阳平日里不吭声,这次却准备“一鸣惊人”了!南阳卧龙岗,已列为河南省重点打造的十大文化旅游产业集聚区之一,北京城建集团也来了,要投资100亿,打造5A级景区,规划方案经过近一年的反复论证,新鲜出炉了!


4号地建筑设计方案——内部形象
“卧龙岗文化旅游产业集聚区”由北京城建和中国国经经济交流中心组建的联合体——国经五维(南阳)文化旅游开发有限公司对口援建。北京城建集团来头可不小,它的代表项目有:体育场“奥运鸟巢”、体育馆、大剧院、中央电视台和首都机场3号航站楼等,牛!


卧龙岗公园东入口
这个项目是京宛合作的典范。原来,作为南水北调中线工程受水区的北京人民,由衷感谢、感恩南阳人民为此作出的牺牲和贡献,迫切地希望回馈水源地人民。为实现京宛合作一家亲,北京市对口支援南阳部分经济发展项目。

项目用地范围示意图
它规划以武侯祠景区为核心,整体项目按照5A级景区标准打造,分别以诸葛亮智慧文化和汉文化为内涵要素,打造汉文化论坛、汉舞汉乐、汉式餐饮、汉式茶道、汉服制作、汉俗体验、汉式养生和EMBA培训、玉文化体验等特色项目。听起来很不错吧~

云台山转型升级,未来将变成这样……

云台山景区的发展一直让人惊喜不断。就拿今年春节来说,游客超过19万人,是往年同期的3倍,99%为自驾游。根据云台山景区中期发展目标,将用5年左右的时间,累计投入30亿元,使旅游综合收益达到25亿元;再用5年时间投入100亿元,使旅游综合收益达到80亿元。
“一体两翼,复合发展”是云台山转型升级战略的近期定位。“一体”即以自然山水为主体,“两翼”即文化与休闲。

景区将推进基础设施配套项目建设,包括云台山加油站项目,青龙峡、峰林峡游客服务中心项目;将与北京观印象艺术发展有限公司合作打造“竹林七贤”大型实景演艺;引进一批中档酒店;对景区内富有特色的太行古村落进行改造复建,发展生态旅游、乡村旅游等;未来,云台山景区还将谋划建设高档温泉养生度假酒店、自驾游房车露营地、云台山旅游观光火车、郑焦城际铁路云台山支线、云台山旅游度假小镇等一批重大转型升级项目。
云台山要上市了,其他景区还等什么呢?


“传说中的”云台山上市终于取得实质性进展:焦作云台山旅游股份有限公司拟在A股市场首次公开发行股票并上市,正在接受中原证券股份有限公司对其进行辅导,已于2015年5月5日在河南证监局进行辅导备案。这么看来,到2016年上半年,云台山可能就挂牌上市啦!
早有规定,自然风景区的景区门票不能纳入上市公司。不过云台山要上市的主体——焦作云台山旅游股份有限公司的核心业务是旅游客运,主要涉及云台山风景名胜区内游客运输、观光索道和游船等业务,注册资本4000万元。
#p#分页标题#e#早在2012年,当时的清明上河园总经理周旭东曾说,2011年清明上河园的门票收入突破亿元,纯利润在3000万左右,“准备按计划申报材料,争取2014年上市成功,较迟到2015年上半年上市完成,力争成为河南省家上市公司。”到了2014年,清明上河园游客接待量达到226万人次,收入2.02亿元,但是上市却迟迟不见消息,加油啊!

咱大河南的景区无论是上市、转型升级,还是建文化产业集聚区,说到底都是为了让小伙伴们开心地旅游。这也顺便带动区域经济发展,让河南老百姓的日子更滋润啦。持续关注河南旅游的大动作,期待家乡越来越好~







